Protegant
İdil Ada Ünal
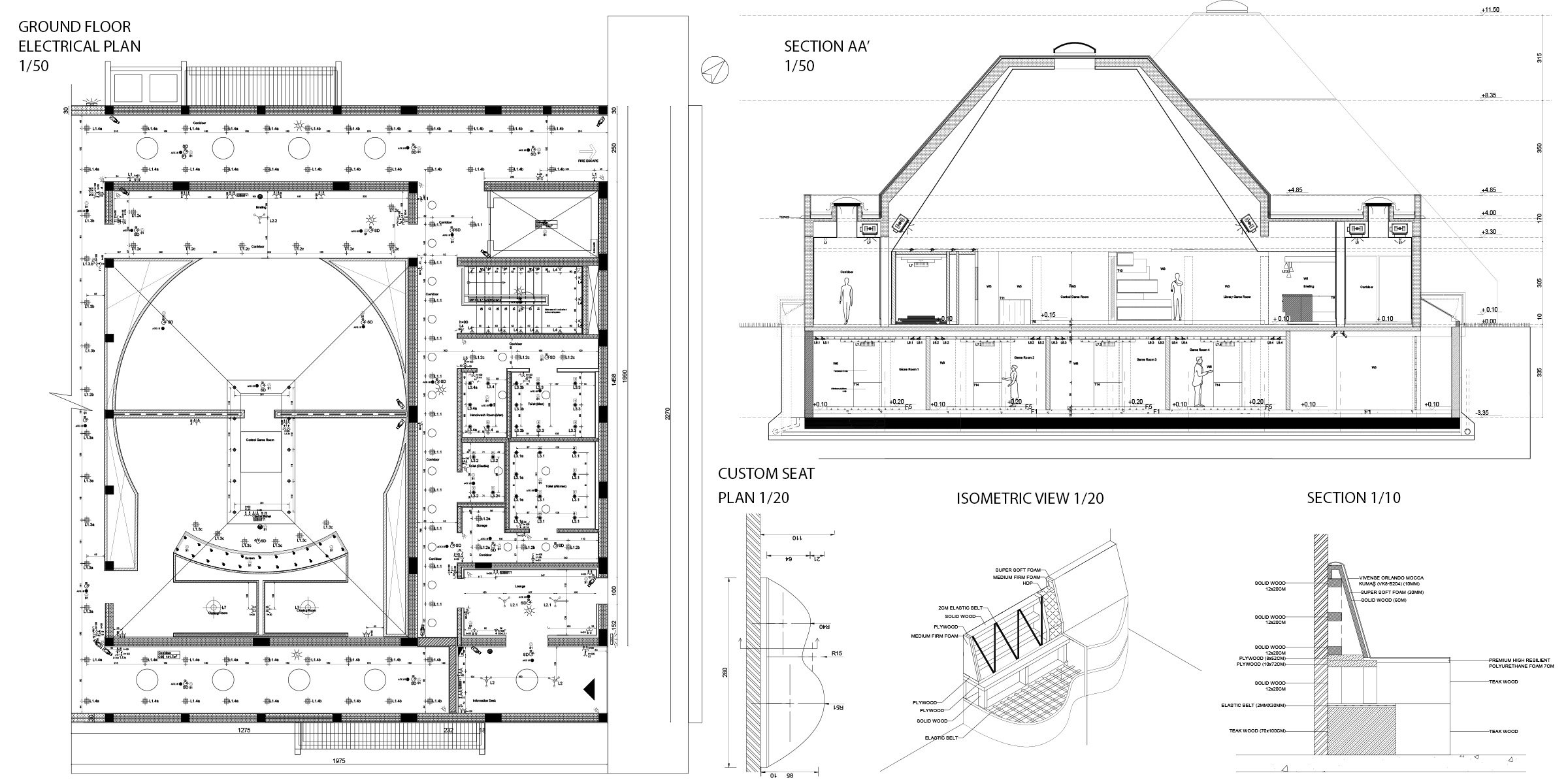
History has repeated itself. Humanity has crumbled under the weight of economic collapse, climate disasters, and brutal wars fought over the last remnants of land. The cities have fallen, leaving behind only ruin and endless desert. Those who survived fled into the wastelands, clinging to hope. At the heart of this barren world stands Protegant — humanity’s final beacon. This advanced research facility opens its gates only to the strongest. To earn a place within, individuals must endure a brutal four-stage trial, testing their physical resilience, mental acuity, and survival instincts. Success promises safety, cutting-edge technology, and a chance to rebuild civilization. Failure means exile to the forsaken lands, where death waits in the shifting sands.
Tarih tekerrür etti. İnsanlık, ekonomik çöküşler ve iklim felaketleriyle sarsıldı; toprak için verilen acımasız savaşlar şehirleri yuttu. Geride yalnızca yıkım ve sonsuz bir çöl kaldı. Hayatta kalanlar, umutsuzca bu çorak topraklara sürüklendi. Çölün ortasında ise insanlığın son umudu yükseldi: Protegant. Bu ileri teknoloji üssü, kapılarını yalnızca en dayanıklı olanlara açıyordu. Protegant’a kabul edilmek isteyenler, dört aşamalı ölümcül bir sınava katılmak zorundaydı; fiziksel güçlerini, zihinsel keskinliklerini ve hayatta kalma becerilerini kanıtlamak zorundaydılar. Başarı, güvenlik ve uygarlığın küllerinden yeniden doğma fırsatı demekti. Başarısızlık ise, sonsuza dek unutulmuş topraklara, ölümün gölgesine geri dönmek anlamına geliyordu.
#dynamicaltheory #compossibility #dustborne #memorycorridors #mindmaze #dinamikkuram #birliktemümkünolma #tozdandoğan #hafızakoridorları #zihinlabirenti
Studio Coordinators: Assoc. Prof. Dr. Didem Kan, Asst. Prof. Dr. Markus Wilsing, Asst. Prof. Dr. Selin Gülden, Asst. Prof. Dr. Meltem Eranıl, Lect. Gökdeniz Neşer, Res. Asst. Yasemin Albayrak Kutlay



